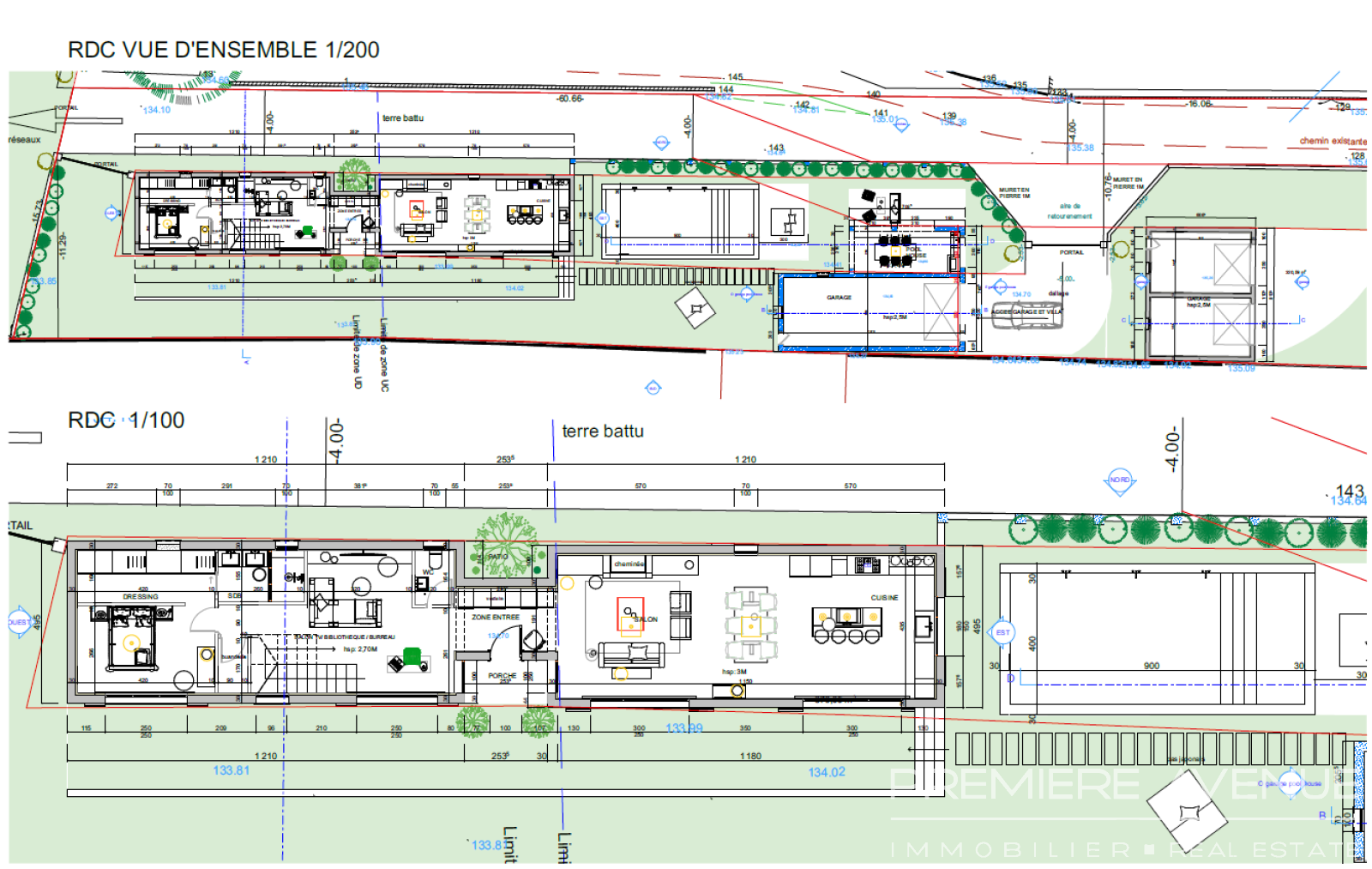
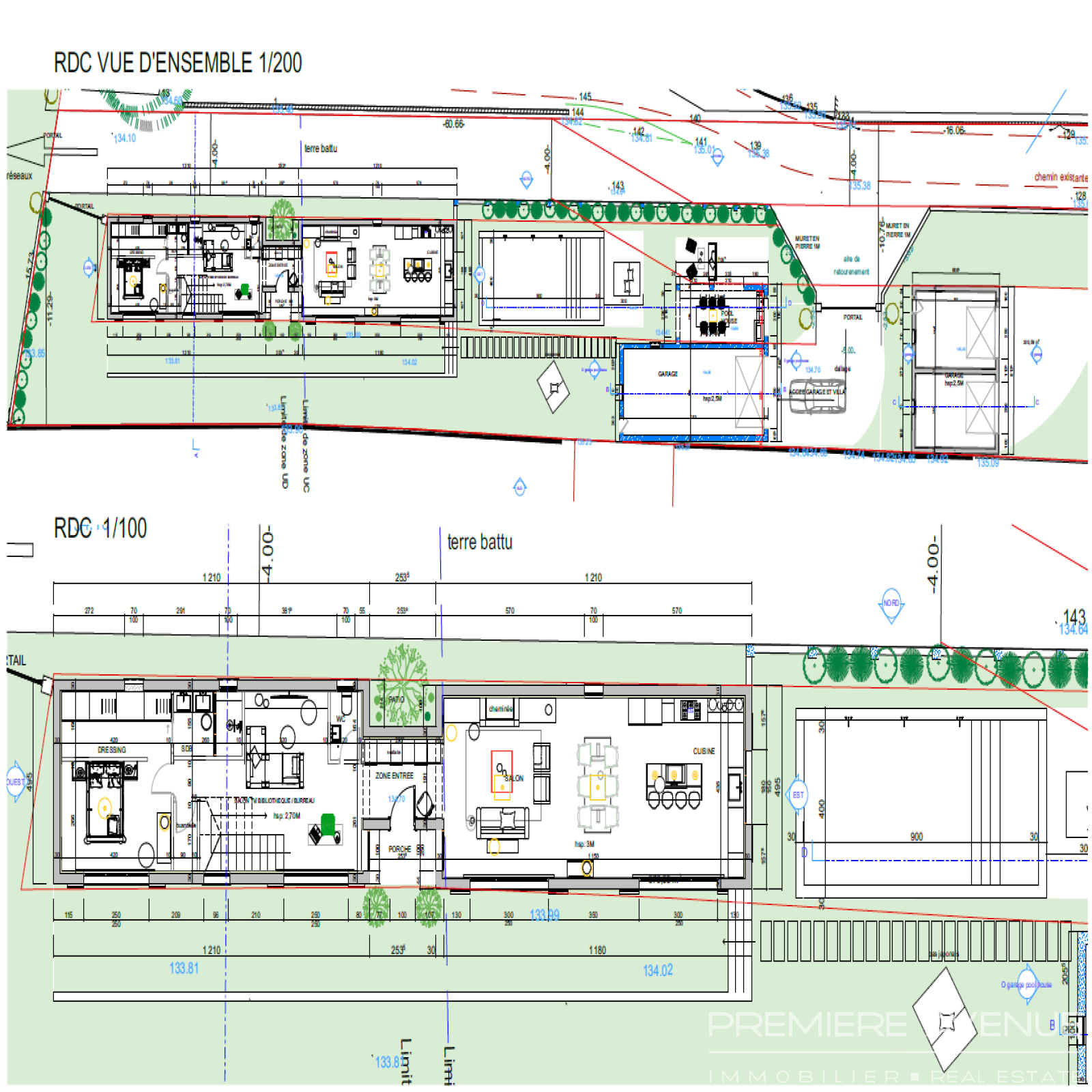
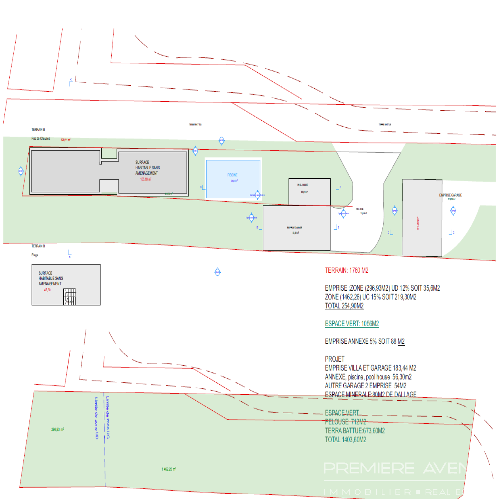
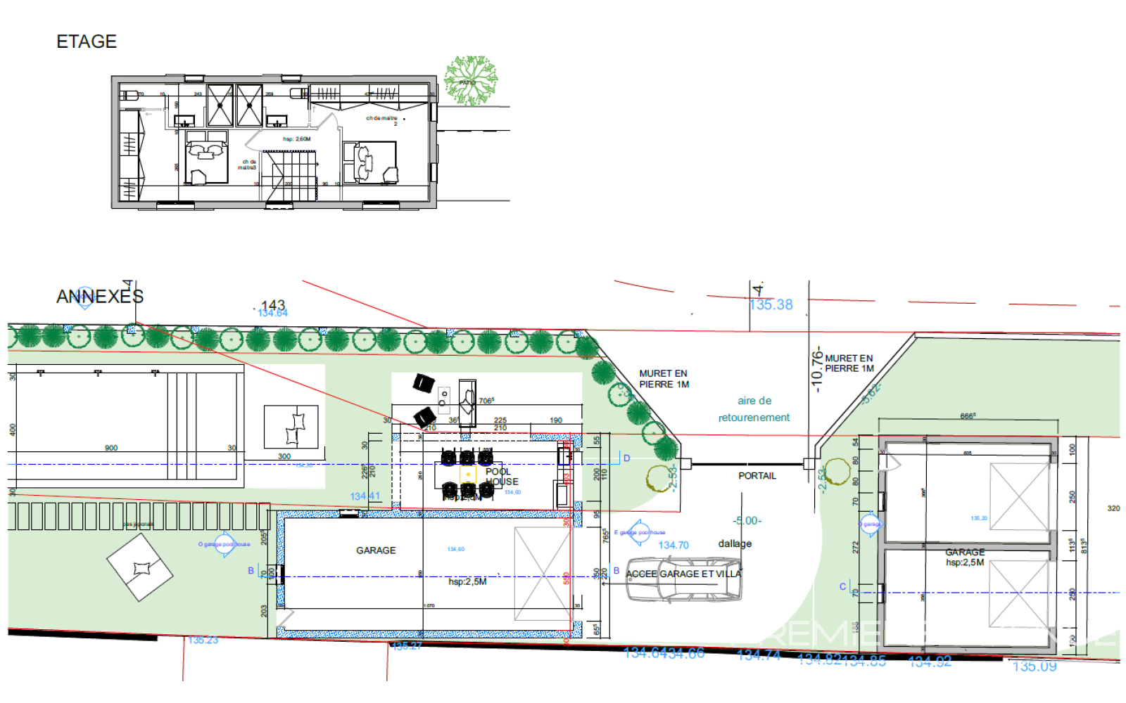
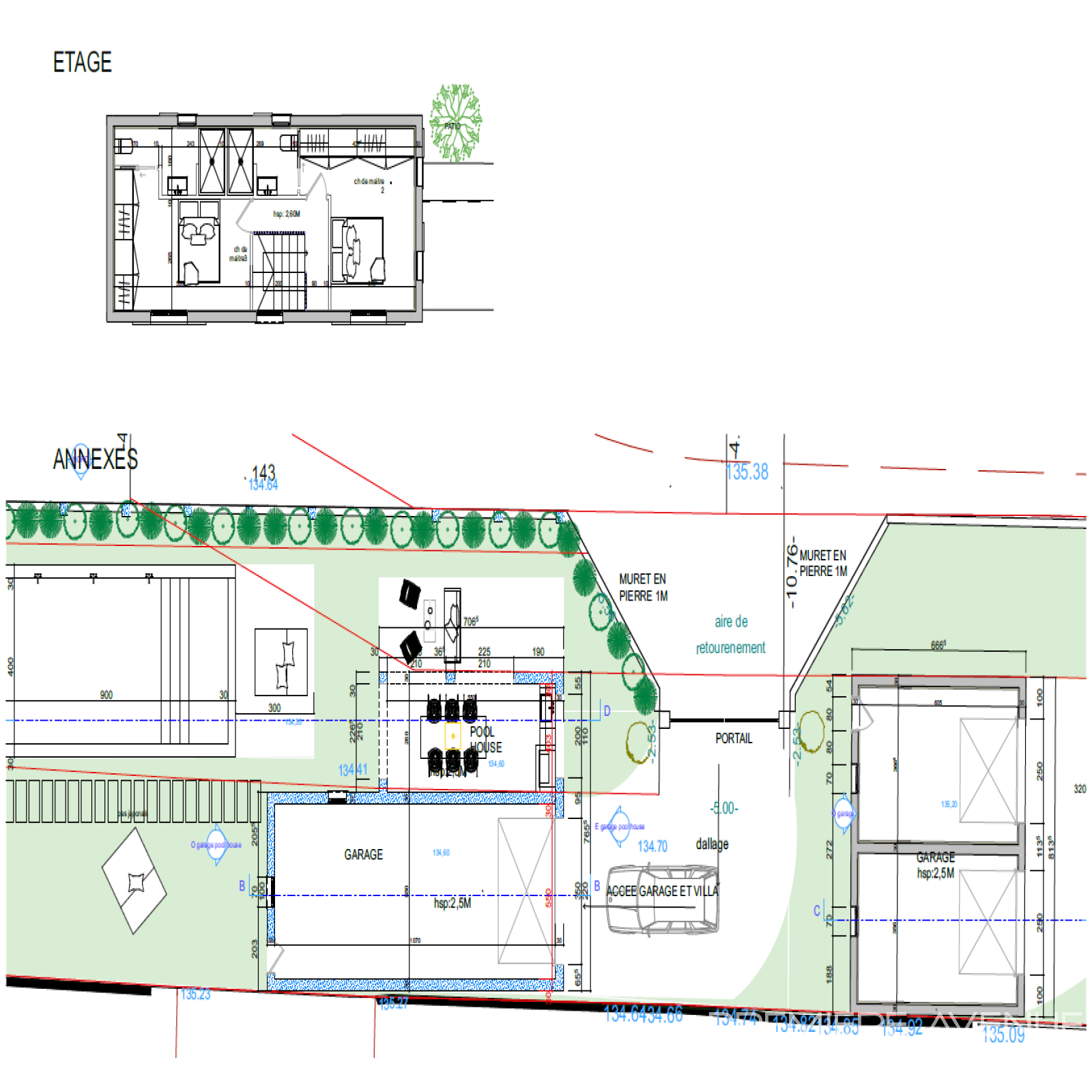
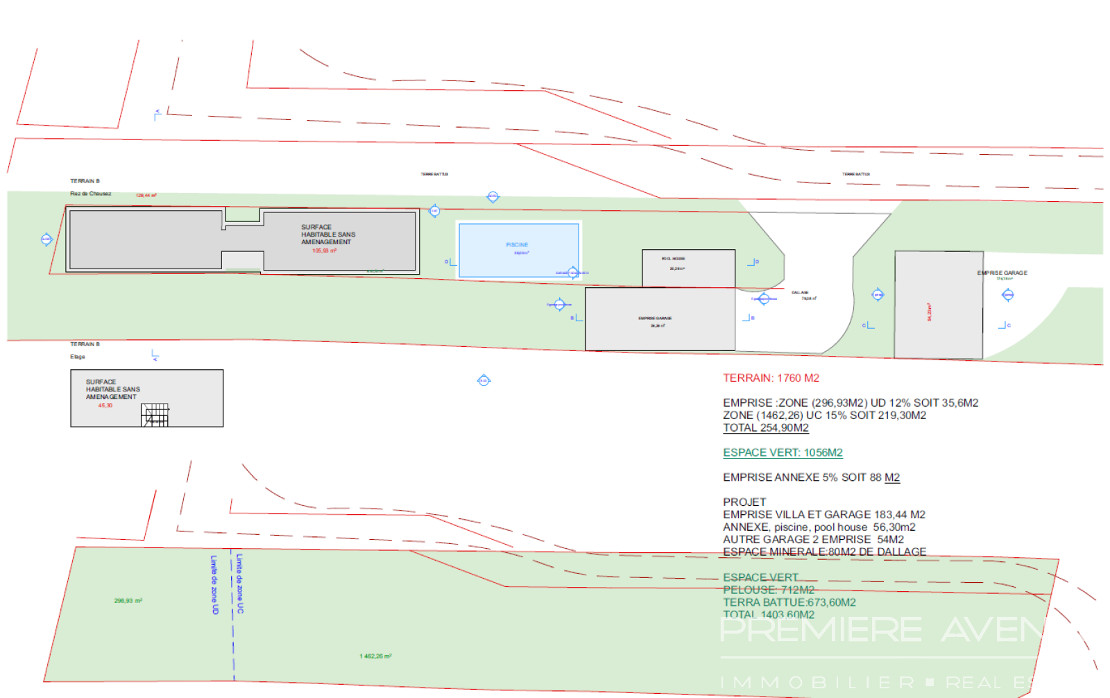
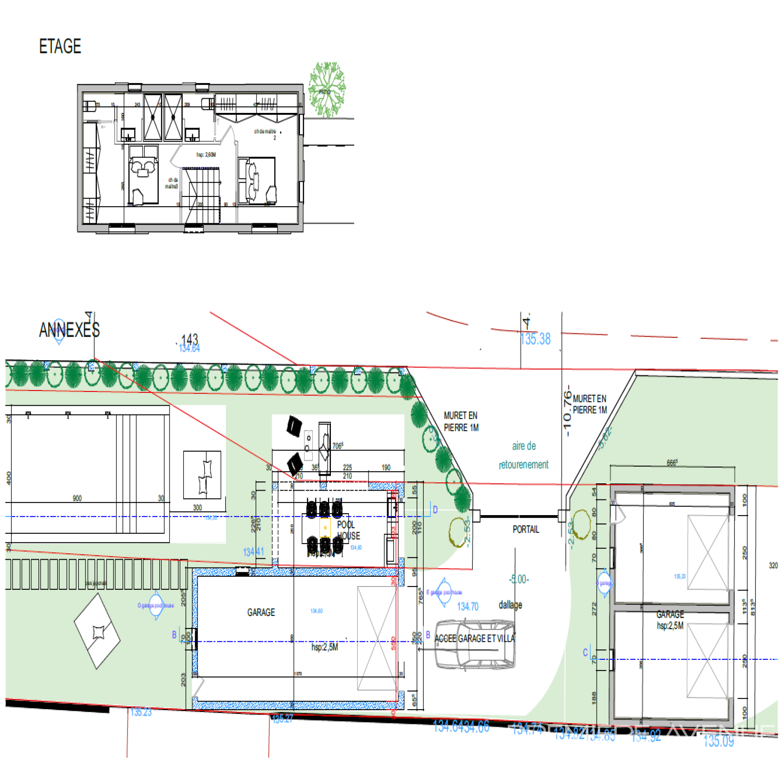
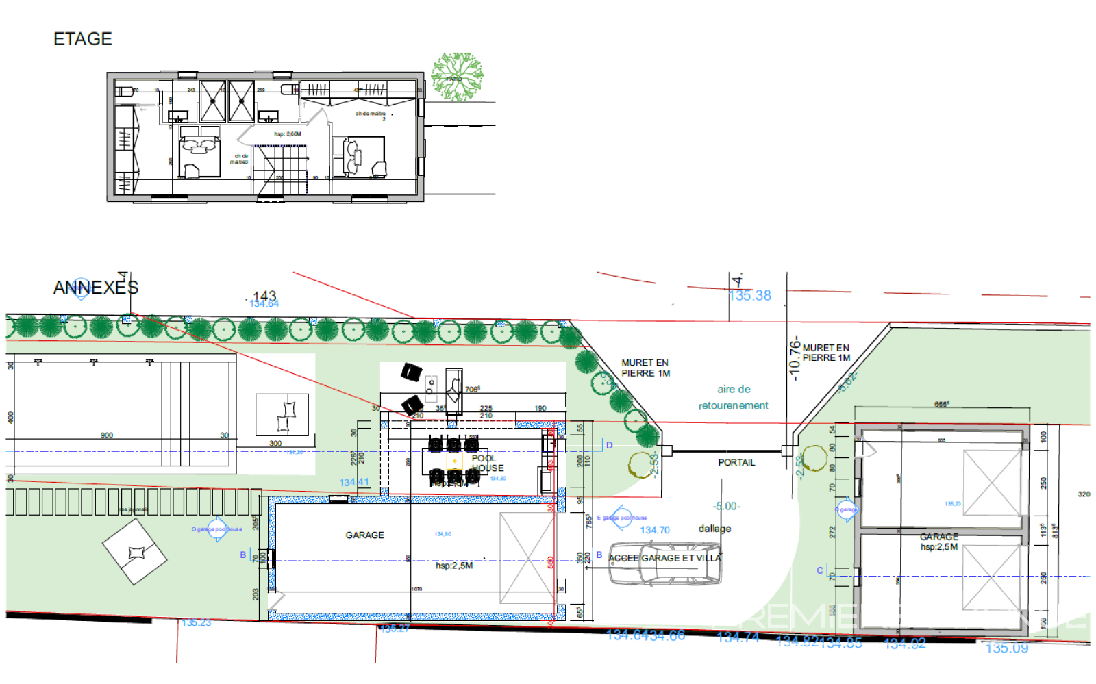
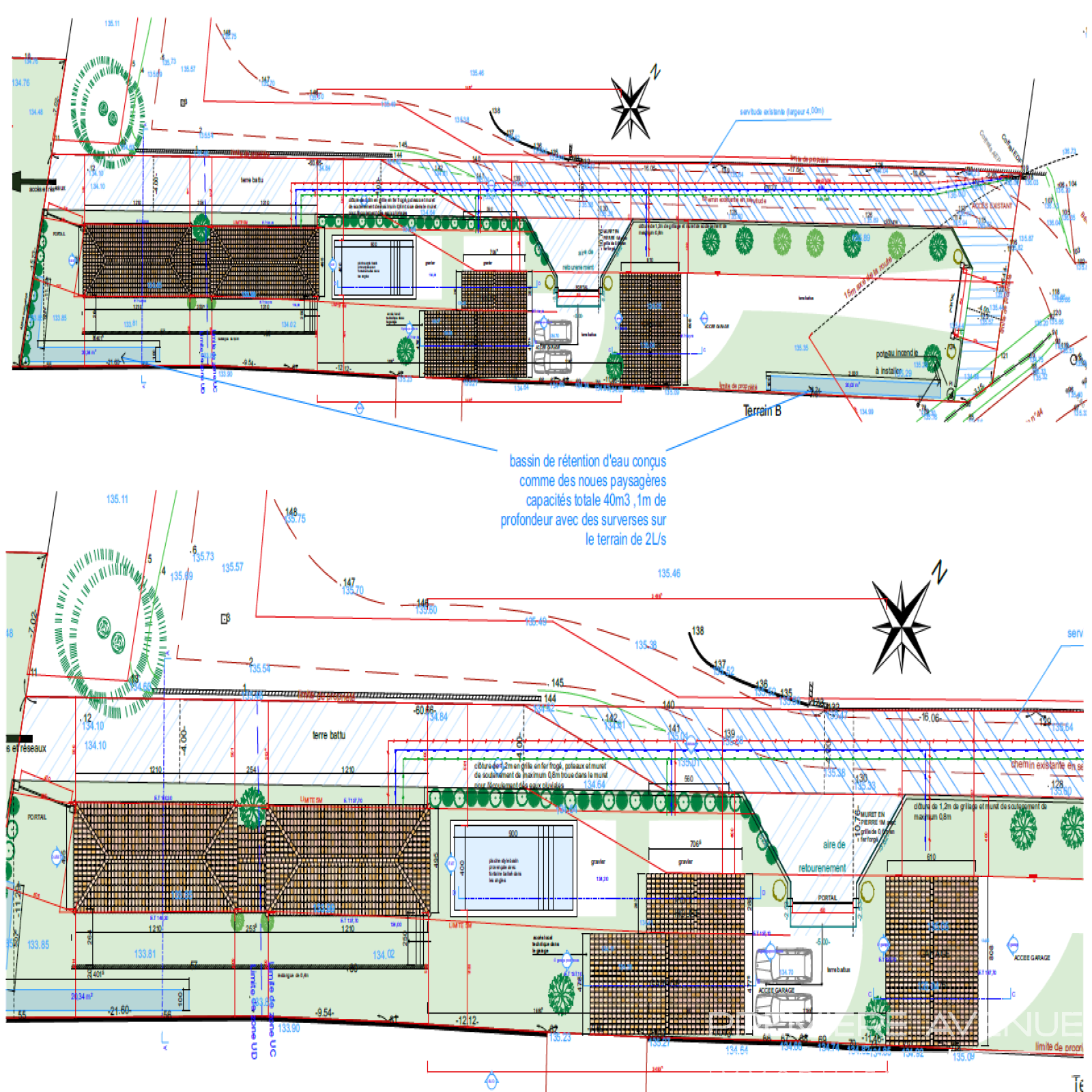
A proximité du village du Plan de la Tour, terrain plat de 1760 m² au calme. Projet d'une maison individuelle de 150 m², comprenant 3 chambres de maître dont une au rez de chaussée. Piscine 9x4 avec pool house de 20m², garage de 54 m² + dépendance de 54 m². Stationnements. Permis de construire purgé de tout recour. Libre constructeur.
