Page suivante
Page précédente
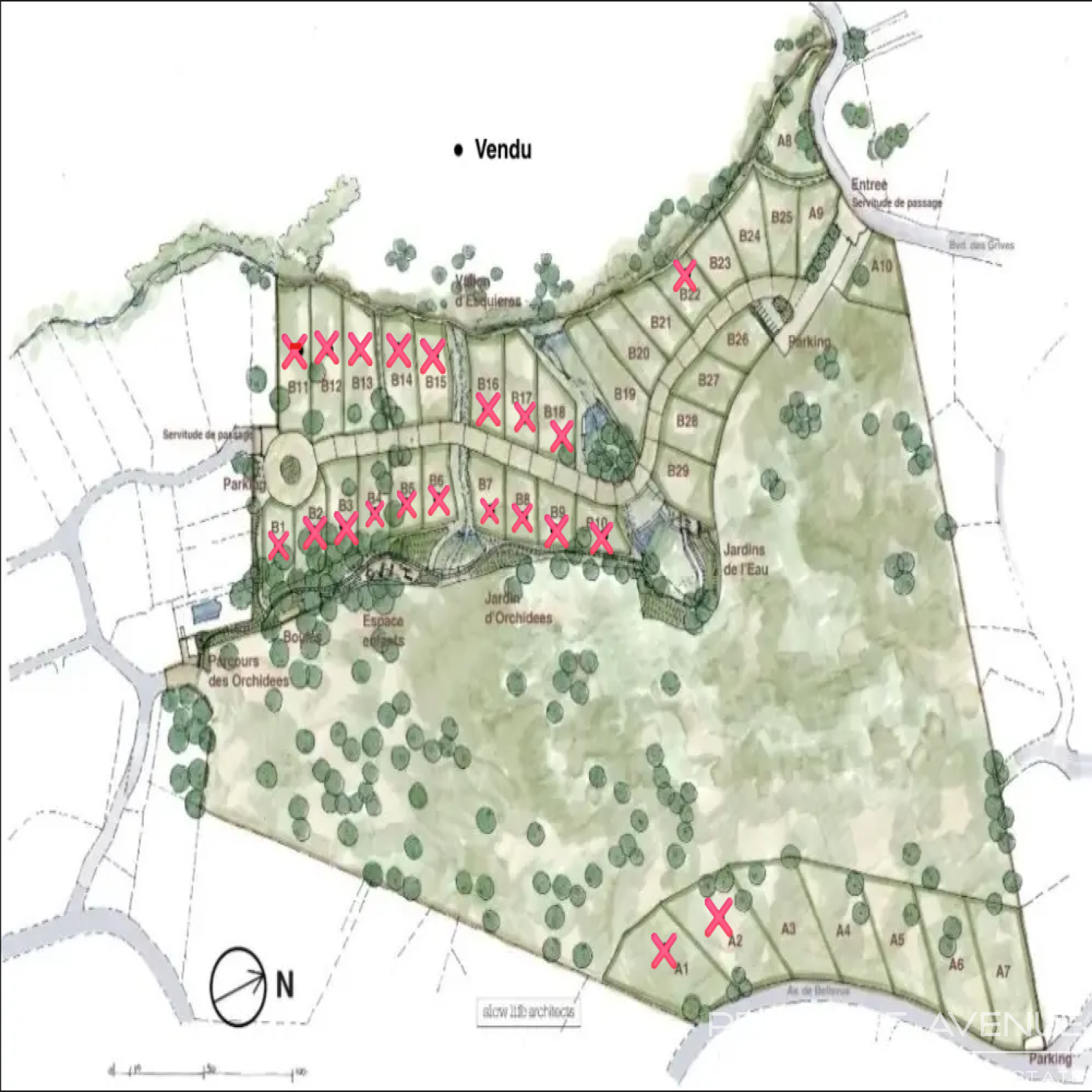
Les Issambres (83380)

Terrain

1183 m²
440 000 €
Réf VTE10001612

Nous vous proposons plusieurs terrains, dont certains avec vue mer, situés sur les hauteurs des Issambres.
Les superficies disponibles vont de 523 m² à 1 565 m², pour des prix compris entre 260 000 € et 1 480 000 €.

Actuellement classés en zone inconstructible, ces terrains sont néanmoins en voie prochaine de constructibilité.
Seules 15 % du prix sont à verser aujourd’hui, le solde n'étant dû qu’une fois la constructibilité obtenue.

Bilan énergétique

Diagnostics énergetiques
A propos de ce bien Caractéristiques de ce bien
  • terrain 1 183 m²

Financier

Informations financières
Prix de vente honoraires TTC inclus 440 000 €

Simulation

Calcul des mensualités
* Champs obligatoires
PREMIÈRE AVENUE Agence