Page suivante
Page précédente
Les Issambres (83380)

Villa 4 pièce(s) 3 chambre(s) 86 m²

1
1
40 m²
Réf VMA170001187

Maison en parfait état, dans une petite résidence de standing avec piscine, assez proche du bord de mer, dans un cadre idyllique, au calme, dans la verdure et avec une jolie vue mer.

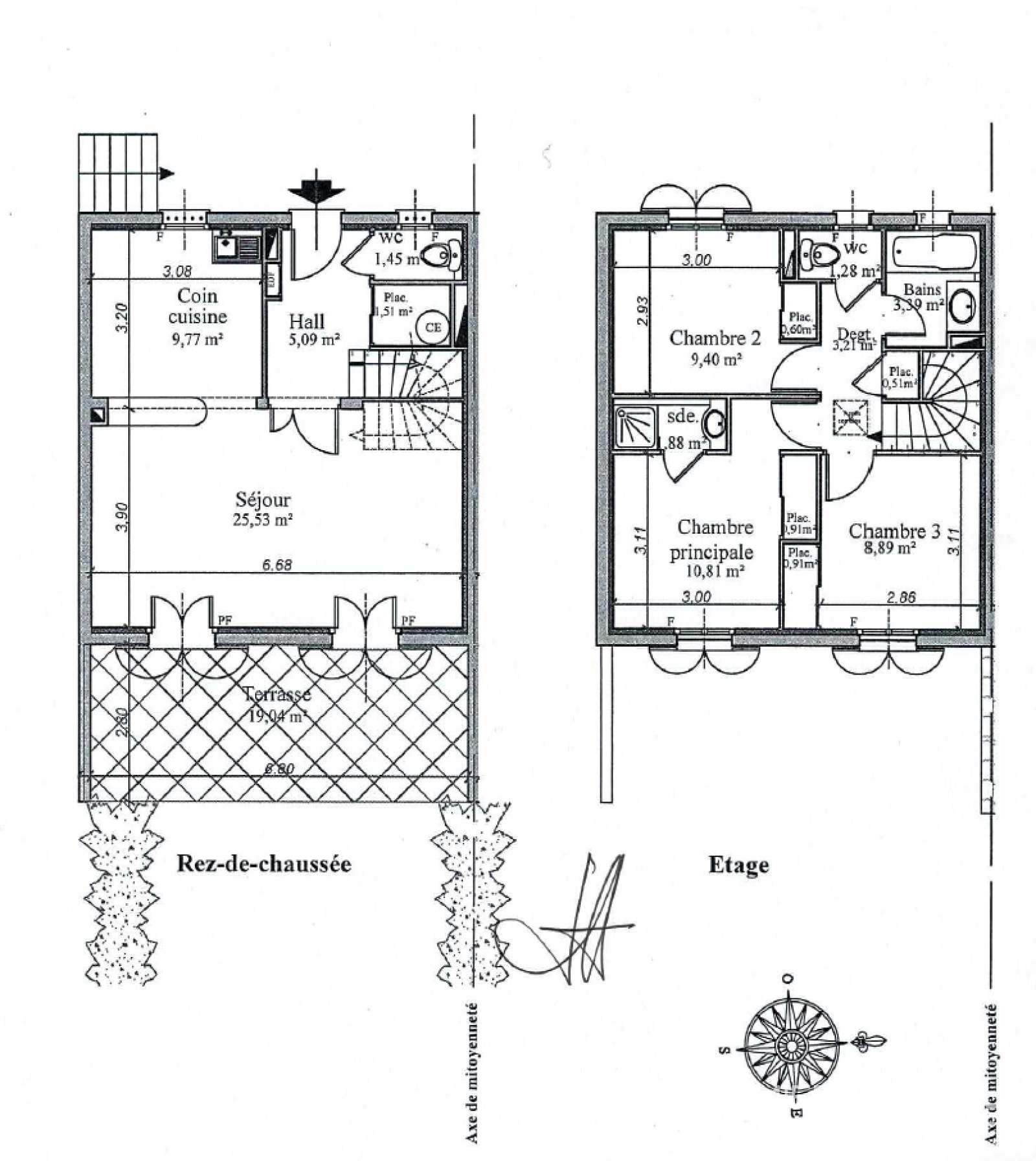
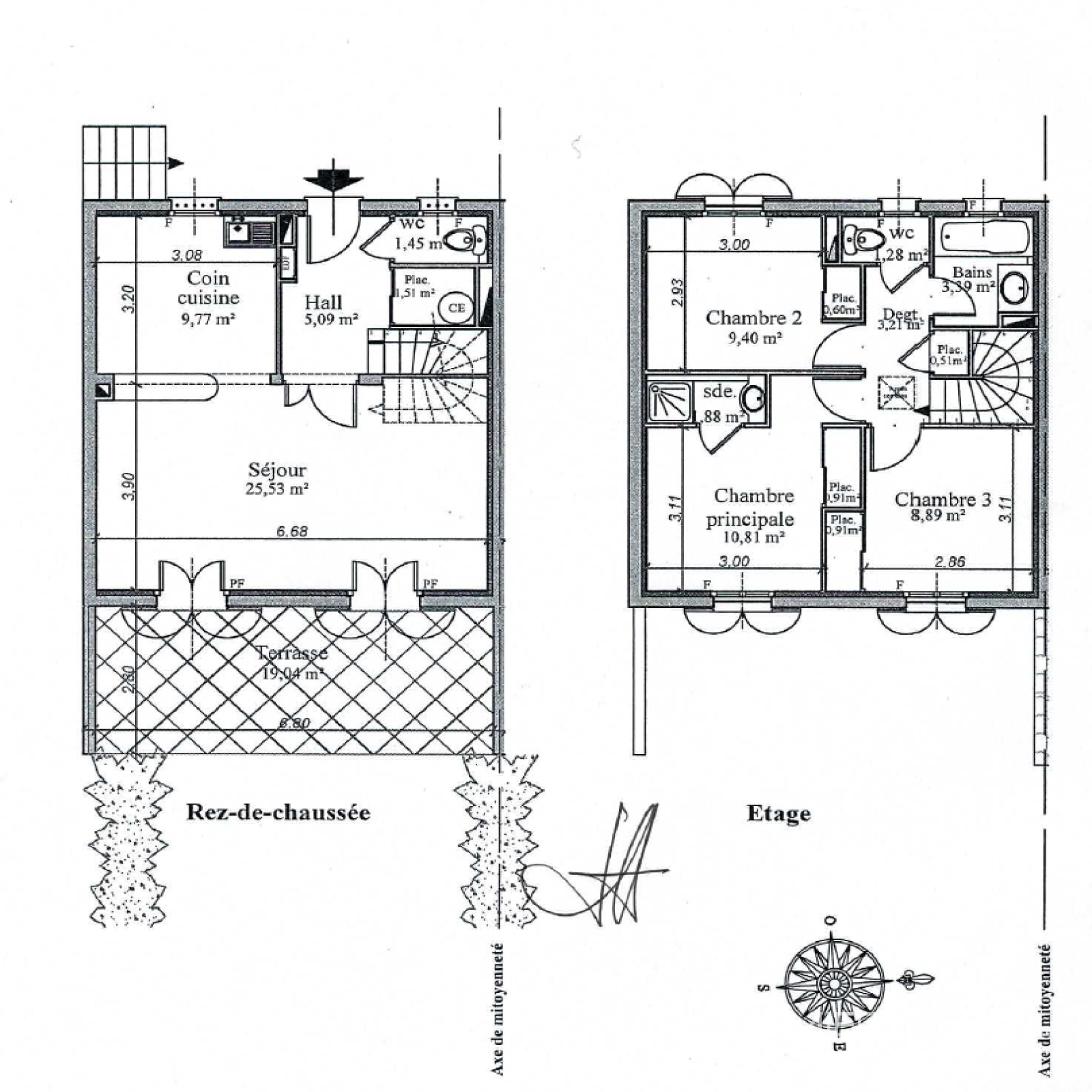
De plain-pied, entrée avec wc invités et vestiaire, belle cuisine ouverte équipée, séjour très lumineux avec accès à la terrasse et au jardinet.

La vue mer est parfaitement dégagée et le cadre somptueux et sécurisé.

A l'étage 3 chambres, 1 salle de douche,1 salle de bains, wc indépendant.

Place de parking privée et garage.

Coup de cœur assuré !!!!!!!


Les informations sur les risques auxquels ce bien est exposé sont disponibles sur le site Géorisques

Bilan énergétique

Diagnostics énergetiques
A propos de ce bien Caractéristiques de ce bien
  • Surface 86 m²
  • carrez 84,77 m²
  • terrain 40 m²
  • séjour 35,27 m²
  • 3 chambre(s)
  • 1 salle(s) de bain
  • 1 salle(s) d'eau
  • construit en 2007
  • cuisine américaine (équipée)
  • Chauffage individuel : air pulsé (climatisation)
  • 1 garage(s)
  • 1 parking(s)
  • exposition Sud-Est
  • 2 côté(s) mitoyen(s)
  • 1 niveau(x)
  • vue MER
  • terrasse
  • interphone

Composition

Composition de ce bien

Rez-de-chaussée

  • salon/sejour 35.27 m²
  • entrée 4.86 m²
  • WC 1.29 m²
  • cellier 1.35 m²

Etage 1

  • chambre 11.07 m²
  • chambre 9.11 m²
  • chambre 9.37 m²
  • salle d'eau 3.43 m²
  • WC 1.31 m²

Info copro

Copropriété
  • Copropriété Oui
  • Lot n° 23
  • Nombre de lots 26
  • Quote part annuelle des charges 3 600 €
  • Plan de sauvegarde Non
  • Statut du syndic Pas de procédure en cours

Financier

Informations financières
Les honoraires d'agence seront intégralement à la charge du vendeur  
Charges 300 €
Taxe foncière annuelle 2 449 €

Simulation

Calcul des mensualités
* Champs obligatoires
PREMIÈRE AVENUE Agence